Опубликовала KES_LES
в группе Ремонт, дизайн и интерьер дома
Интерьер детской в дачном доме.
Хочу поделиться проектом детской комнаты в дачном доме из бруса, который я выполнила для своей дочери
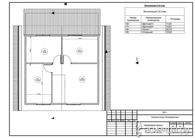
На плане это ДЕТСКАЯ 2
На плане это ДЕТСКАЯ 2
|




Комментарии:
Написать комментарийВсегда мечтала сидеть на подоконнике.
мне оч нравится!
у моей дочки сейчас такая кровать, только + еще спинка мягкая кожаная, сама бы в такой спала с удовольствием. И обои тоже классные.
Закончила Новосибирскую частную школу дизайна.